Обогрев кровли и водосточной системы административного здания

Описание объекта обогрева
Конструкция кровли: скатная.
Материал: фальцевая.
Край кровли общее: 88,18 м.
Водосточные желоба:
- Диаметр: 125 мм;
- Длина общая: 88,18.
Водосточные трубы: пластик.
- Диаметр: 9 мм;
- Длина общая: 12,10 м;
- Количество: 6 шт.
Водосточные трубы:
- Диаметр: 90 мм;
- Длина: 5,6 м;
- Количество: 1 шт.
Назначение системы обогрева
Обогрев края кровли и водостоков для стаивания снежных осадков, предотвращения образования сосулек и ледовых пробок в трубах водостока.
Техническое решение
Проблема: административное здание расположено на линии тротуара. В зимне-весенний период схождения снежных лавин и падения сосулек, влечет опасность для жизни и здоровья пешеходов.
Снежные массы наносят ущерб имуществу: проседание кровельных конструкций и желобов под тяжестью снега, а также разрыв труб водостоков из-за внутренних ледовых пробок.
Решение: установка Кабельной Системы Обогрева (СКО).
Для Торгового Дома «Нефтемаш» спроектирована индивидуальная СКО на основании исходных технических данных объекта.
Кровля: скатная конструкция с фальцевым покрытием, в период выпадения осадков скапливает снежные массы на карнизе. Поэтому рациональным решением является установка кабельных секций по краю кровли. Для своевременного стаивания осадков по принципу «теплого пола»: снег при оседании на теплую крышу, превращаясь в воду, часть которой испаряется сразу, а другая стекает по желобам и организованным потоком выводится через водосточные трубы.
Греющий кабель: обогрев края кровли, желобов и водосточных труб произведен саморегулирующимся низкотемпературным кабелем SRG 30-2CR-UV с высокой степенью устойчивости оболочки к внешним факторам и УФ-лучам.
Шкаф Управления (ШУ): эксплуатация системы осуществляется через шкаф управления размещенного в отапливаемом помещении. Установленная мощность системы электрообогрева 25,50 кВт, количество фаз питания 3, установленный ток 41,4А. Датчики температуры, датчики осадков, датчики воды входят в подсистему ШУ, считывают климатические изменения окружающей среды и в моменте выстраивают текущую работу системы.
Состав системы обогрева кровли и водостоков
| № | Наименование | Обозначение |
|---|---|---|
| 1. Подсистема обогрева | ||
| 1.1 | Саморегулирующийся греющий кабель | SRG 30-2CR-UV |
| 1.2 | Комплект заделки для кабеля | ТКТ/3М |
| 1.3 | Комплект заделки для кабеля | ТКТ/3М |
| 1.4 | Силовой кабель (холодный конец) | ВВГнг(А)-LS 3х2,5 |
| 2. Подсистема питания | ||
| 2.1 | Коробка соединительная силовая | КРОН-ММ2-2/3М |
| 2.2 | Коробка соединительная силовая | КРОН-ММ2-1/3М |
| 2.3 | Коробка соединительная силовая | КРОН-ММ2-2/2М |
| 2.4 | Коробка соединительная силовая | КРОН-ММ2-1/2М |
| 2.5 | Силовой кабель | ВВГнг(А)-LS-5х4 |
| 2.6 | Силовой кабель | ВВГнг(А)-LS-5х4 |
| 3. Подсистема управления | ||
| 3.1 | Шкаф управления | ШУЭО-26/6-Т813УПП-240520_17-ММ |
| 3.2 | Коробка соединительная | КРОН-ММ1-1/1М |
| 3.3 | Датчик температуры | ST22-2,0 |
| 3.4 | Датчик осадков | TSP02-3,0 |
| 3.5 | Датчик воды | TSW01-3,0 |
| 3.6 | Контрольный кабель | КВВГЭнг(А)-LS 4x1,5 |
| 3.7 | Витая пара | cat 5e |
| 4. Подсистема крепления | ||
| 4.1 | Лента монтажная | ТП |
| 4.2 | Кронштейн для трубы (Т-скоба) | ТС.04 Ц |
| 4.3 | Трос в оплетке | d2/3мм |
| 4.4 | Зажим | СР/Т.1-25 Ц |
| 4.5 | Зажим | СР.2-50 Ц |
| 4.6 | Зажим | СР.1-25 ЦО |
| 4.7 | Кронштейн | РВ |
| 4.8 | Металлорукав | РЗ ЦП-20 |
| 4.9 | Термоусадки | ТУТ(3:1)нг-LS 30/10 черная |
| 4.10 | Металлорукав | РЗ ЦП-32 |
| 4.11 | Металлорукав | РЗ ЦП-25 |
Электрические системы кабельного обогрева эффективный способ предотвратить последствия зимних осадков: для административных и промышленных зданий, а также частных и многоэтажных домов наши инженеры разрабатывают индивидуальные проекты, это обеспечивает сохранность объектов и безопасность для людей.
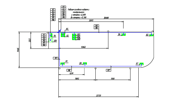
Схема системы обогрева кровли и водосточной системы

- Рассчитаем требуемую мощность
- Подберем кабель и крепления, подходящий для Вашего объекта
- Порекомендуем удобную систему управления
