В каких случаях необходимо проектирование обогрева резервуара?
Во всех. Проектирование электрообогрева резервуара включает точный расчет теплопотерь, мощности кабеля, подбор комплектующих, разработку схемы раскладки кабеля и так далее. Вся техническая документация передается заказчику для дальнейшего использования при монтаже и эксплуатации. Часто проект обогрева резервуара включается в общий план строительства или реконструкции объекта.
Разработка проекта обогрева резервуара осуществляется специалистами (проектировщиками), имеющими соответствующую квалификацию и опыт в данной сфере. Для компании, предлагающей разработку проекта необходимо наличие СРО на проектирование.
Время разработки проектной документации – 1-2 недели, при условии, что все данные предоставлены и согласование проходит без значительных задержек.
Нормативные документы, используемые при проектировании обогрева резервуара:
- Емкости подземные горизонтальные дренажные типа ЕП, ЕПП по ТУ 3615-023-00220322-2001 (.pdf / 268.96 КБ)
- ПУЭ изд.7 (.pdf / 3.49 МБ)
- СНиП 3.05.06-85 (.pdf / 332 КБ)
- СНиП 23-01-99 (.pdf / 1.64 МБ)
- ГОСТ Р 50.57125-2001 (.pdf / 123 КБ)
- ГОСТ Р МЭК 62086-2—2005 (.pdf / 597 КБ)
- Рассчитаем требуемую мощность
- Подберем кабель и крепления, подходящий для Вашего объекта
- Порекомендуем удобную систему управления
Этапы проектирования обогрева резервуара
Разработка технического задания (в случае если оно не предоставлено) и подготовка Торгово-коммерческого предложения (ТКП)
Для первоначальных расчетов и выполнения предварительной спецификации заполняется опросный лист, в котором указывается назначение резервуара, форма, размеры, материал, температура окружающей среды, рабочая температура и другие данные, необходимые для подбора системы обогрева.
Теплотехнический расчет системы обогрева
В расчете определяются теплопотери с поверхности резервуара в зависимости от продукта, материала резервуара, теплоизоляции и т.д. Осуществляются расчеты программными методами, либо по формулам, приведенным далее.
Подбор элементов системы электрообогрева
Составляется спецификация с указанием всех составляющих системы (греющего кабеля, креплений, комплектующих, элементов управления, запчастей). Составляющие системы должны соответствовать заданным параметрам качества и техническим требованиям. Утверждается стоимость оборудования, выполняется подбор аналогов и т.д.
Выполнение рабочей документации (РКД)
В составе проекта электрообогрева резервуара содержатся:
Пояснительная записка
Теплотехнический расчет
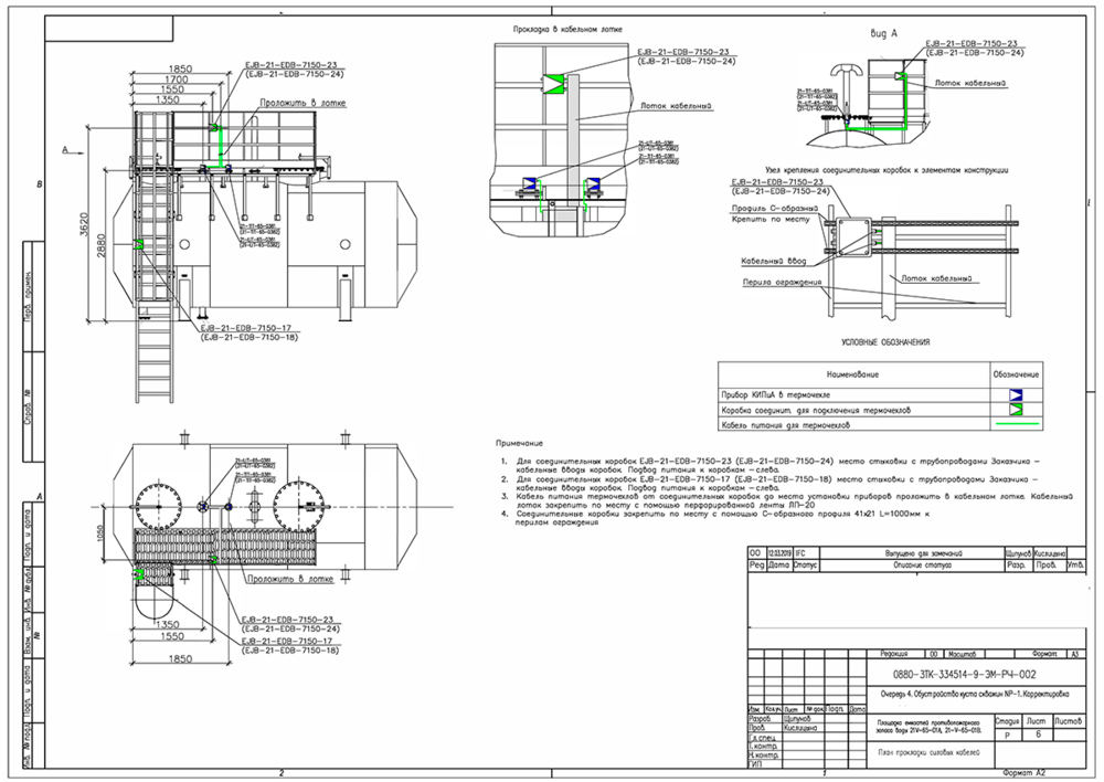
Схема монтажа
Монтаж типовых узлов
Принципиальная схема шкафа управления
Схема подключения нагревательного кабеля к шкафу управления
Спецификация оборудования и материалов
Задание на подвод питанияСогласование проекта и выдача Заказчику
Проект согласуется с технической службой, принимающей проект в работу. На этапе согласования исключаются ошибки и противоречия с остальной технической документацией объекта, проверяется сочетание с другими конструкциями и объектами. Оформляется проект электрообогрева в соответствии с ГОСТом, а также внутренним стандартам предприятия. Предоставляется как правило электронная (pdf, dwg) и бумажная версия документа.
Примеры проектов обогрева резервуара
Типовая документация на систему электрообогрева резервуара
На стадии технико-коммерческого предложения предоставляется:
- Список соответствий требованиям опросного листа;
- Эскиз оборудования с ориентировочными габаритными и присоединительными размерами.
На стадии исходных данных предоставляется:
- Чертёж общего вида с указанием массы, габаритных и присоединительных размеров (РКД, выполненная по ГОСТ ЕСКД);
- Объём поставки (спецификация изделий оборудования и материалов).
На стадии рабочей конструкторской документации предоставляется:
- Габаритно-монтажные чертежи шкафа управления (общие виды, вес, требования к установке и т.д.), выполненные согласно ГОСТ ЕСКД;
- Схемы монтажа греющего кабеля на резервуаре;
- Детальная спецификация комплекта поставки обогрева резервуара с техническими характеристиками поставляемого оборудования;
- Список запасных частей, инструментов и принадлежности;
- Сопроводительная и разрешительная документация: сертификаты, паспорта качества, инструкции на кабель и комплектующие.
При отгрузке предоставляется:
- Габаритно-монтажные чертежи шкафа управления;
- Инструкция, содержащая описание специфики управления, а также рекомендации по настройке изменяемых параметров;
- Схемы монтажа греющего кабеля на резервуаре;
- Детальная спецификация комплекта поставки обогрева резервуара с техническими характеристиками поставляемого оборудования;
- Технический паспорт на русском языке;
- Руководства по монтажу, пуско-наладке, эксплуатации и техническому обслуживанию;
- Инструкция по транспортировке и хранению;
- Инструкция по подъемно-монтажным работам;
- Ведомость ЗИП;
- Перечень быстроизнашивающихся деталей для пуска и гарантийного периода эксплуатации (при наличии);
- Перечень специального инструмента, необходимого для монтажа, технического обслуживания и ремонта;
- Ремонтная документация согласно ГОСТ 2.602-2013 ЕСКД «Ремонтные документы»;
- Процедура приемки;
- Процедура испытаний на заводе-изготовителе;
- Процедура испытаний на месте (при необходимости);
- Акт и протокол приемки на заводе-изготовителе, сведения об устранении недостатков, выявленных в процессе приемочных испытаний;
- Декларации/Сертификаты соответствия требованиям Технических регламентов Таможенного союза (ТР ТС) на данное оборудование и его компоненты.









